ZÁKLADNí
Parametry
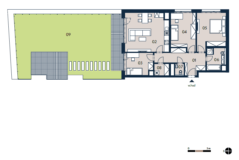
Byt s nadstandardním vybavením jako jsou interiérové bezfalcové lakované dveře s magnetickými zámky, sanita Villeroy & Boch, velkoformátové obklady a dlažba, kamenické rohy.
| Dispozice | 4kk |
|---|---|
| Celková plocha | 108 m² |
| Plocha zahrady | 122 m² |
| Podlaží | 3. np |
| Cena jednotky s DPH | 28 984 725 Kč |
| Stav | předrezervováno |
| Číslo jednotky | 3.4. |
| Vlastnictví | osobní |
KONTAKTUJTE NÁS
Mám o byt zájem
Neváhejte nás kontaktovat na telefonním čísle +420 702 216 216, e-mailu info@creditasre.cz nebo pomocí formuláře níže.
