ZÁKLADNí
Parametry
Jinonický dvůr je uzavřený rezidenční areál v klidné části atraktivní lokality Prahy 5, v blízkosti přírodního parku Košíře-Motol a Prokopského údolí a přitom jen 10 minut autem od srdce Smíchova - Andělu.
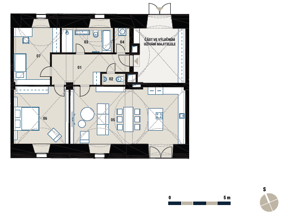
| Dispozice | 3kk |
|---|---|
| Celková plocha | 116 m² |
| Plocha zahrady | 244 m² |
| Podlaží | 1. np |
| Stav | prodáno |
| Číslo jednotky | A1.4 |
| Vlastnictví | osobní |
KONTAKTUJTE NÁS
Mám o byt zájem
Neváhejte nás kontaktovat na telefonním čísle +420 702 216 216, e-mailu info@creditasre.cz nebo pomocí formuláře níže.
