ZÁKLADNí
Parametry
Moderní nájemní bydlení v kompletně zařízené bytové jednotce. Reprezentativní společné prostory, k dispozici sklepy. Výborná občanská vybavenost v lokalitě, stanice metra Florenc za domem.
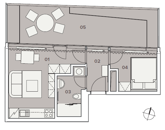
| Dispozice | 2kk |
|---|---|
| Celková plocha | 32 m² |
| Plocha terasy | 24 m² |
| Podlaží | 8. np |
| Cena jednotky s DPH | Na dotaz |
| Stav | pronajato |
| Číslo jednotky | 82 |
KONTAKTUJTE NÁS
Mám o byt zájem
Neváhejte nás kontaktovat na telefonním čísle +420 702 216 216, e-mailu info@creditasre.cz nebo pomocí formuláře níže.
