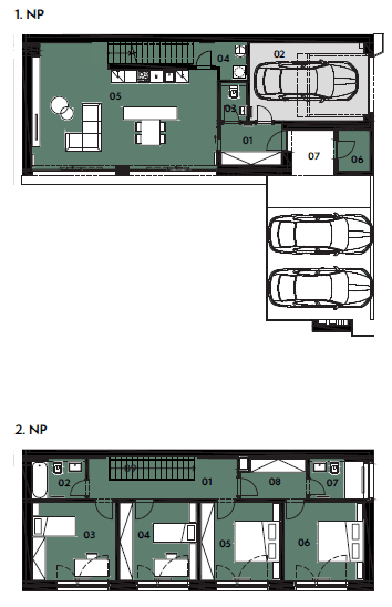
ZÁKLADNí
Parametry
| Dispozice | 5kk |
|---|---|
| Celková plocha | 172 m² |
| Pozemek | 302 m² |
| Stav | prodáno |
| Číslo jednotky | RD 8 |
| Vlastnictví | osobní |
KLECANSKÁ ALEJ
Mám zájem o nemovitost
Neváhejte kontaktovat naše kolegy na telefonním čísle +420 702 216 216, e-mailu info@creditasre.cz nebo pomocí kontaktního formuláře.
