KLECANSKÁ ALEJ
Mám zájem o nemovitost
Neváhejte kontaktovat naše kolegy na telefonním čísle +420 702 216 216, e-mailu info@creditasre.cz nebo pomocí kontaktního formuláře.
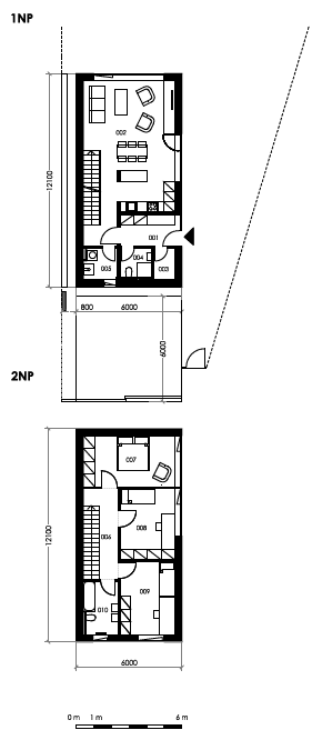
| Dispozice | 4kk |
|---|---|
| Celková plocha | 118 m² |
| Pozemek | 487 m² |
| Cena jednotky s DPH | Na dotaz |
| Stav | předrezervováno |
| Číslo jednotky | 7.125 |
| Vlastnictví | osobní |
Neváhejte kontaktovat naše kolegy na telefonním čísle +420 702 216 216, e-mailu info@creditasre.cz nebo pomocí kontaktního formuláře.
Veškeré informace, jakkoliv publikované na těchto stránkách, jsou nezávazné marketingové informace obecné povahy, které nelze považovat jako nabídku na uzavření smlouvy ani se jich nelze dovolávat. Veškeré plány, rozměry, plochy, zákresy nábytku, vizualizace a vyobrazení kvality a barvy povrchových materiálů mají ilustrativní charakter a nemusejí zcela odpovídat finální podobě a stavu dokončených nemovitostí. Společnost CREDITAS Real Estate Management s.r.o. si vyhrazuje právo na jejich změnu bez předchozího upozornění. Konkrétní smluvní i obchodní podmínky budou sděleny při jednání s prodejcem nebo v sídle naší společnosti.
© 2025 CREDITAS Real Estate Management s.r.o.